Erstbezug in BK-Waldrems: 3-Zimmer-Wohnung mit Balkon, Einzelgarage
In Backnang-Waldrems entstehen zwei Mehrfamilienhäuser mit 7 und 9 Wohnungen, die zur Vermietung angeboten werden.
Beide Gebäude verfügen über einen Aufzug, große Kellerräume, gesonderte Fahrradräume und über den Wohnungen zugeordnete PKW Stellplätze (Garagen, Carports, Aussenstellplätze).
Die Wohnungen sind hochwertig ausgebaut und verfügen je über eine Einbauküche, Fußbodenheizung, Parkett- und Fliesenböden, Waschmaschinen- und Trockneranschluss in der Wohnung und je einen Balkon oder Terrasse.
Die Beheizung erfolgt über eine Luftwärmepumpe, das Brauchwasser wird je Wohnung über einen elektrischen Speicherwassererwärmer erhitzt.
Die Gebäude verfügen über eine Photovoltaikanlage, deren Stromerzeugung durch die Bewohner über ein eigenes Mieterstrommodell mit vergünstigten Tarifen genutzt werden kann.
Alle Wohnungen verfügen über einen Telekom- Glasfaseranschluss, der auch für TV-Anschluss genutzt wird.
Zusätzlich gibt es einen Hausreingungsservice für die Pflege der Gemeinschaftsflächen.
Allgemeine Daten
Alles was Sie wissen müssen
| Objektart | Wohnung |
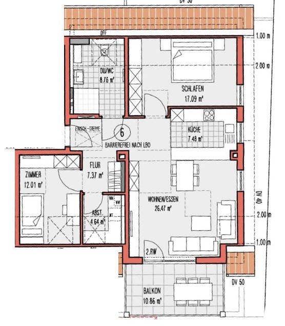
| Wohnfläche | ca. 81 m2 |
| Nutzfläche | ca. 8 m2 |
| Anzahl Zimmer | 3 |
| Etage | 2 |
| Keller | ja |
| Garage / Stellplatz | 1 / 0 |
| Baujahr | 2026 |
| Objektzustand | Erstbezug |
| Energieträger | Luftwärmepumpe |
| Heizungsart | Fußbodenheizung |
| Energieausweis | ausstehend |
| Frei ab | 01.07.2026 |
| Kaltmiete | 1.235,00 € |
| Nebenkosten | 325,00 € |
| Kaution | 3.975,00 € |
Standort
Waldrems ist ein Stadtteil südlich von Backnang. Vom Bahnhof Backnang haben Sie eine gute Andbindung per Zug, Mex oder S-Bahn ( S 3 und S 4) nach Stuttgart, Ludwigsburg oder Schwäbisch Hall. Zudem bietet die B 14 eine gute Anbindung mit dem Auto.
Waldrems bietet einen Kindergarten und Grundschule. Weiterführende Schulen sind in der Kernstadt Backnang angesiedelt.
Backnang bietet seinen Einwohnern und Besuchern eine malerische Fachwerkkulisse in der Innenstadt mit einer guten Infrastruktur an Einkaufsmöglichkeiten, Ärzten, öffentlichen Einrichtungen, Kultur- und Sportangeboten sowie zahlreichen Restaurants und Cafés.
Erstbezug in BK-Waldrems: 3-Zimmer-Wohnung mit Balkon, Einzelgarage
Wir beantworten
gerne Ihre Fragen!
IHRE ANSPRECHPARTNER
Daniela Marek
Vermietungen
Telefon: 07191 / 34420 –213
E-Mail: daniela.marek[at]aspa-immobilien.de
Julian Strodel
Mietverwaltung
Telefon: 07191 / 34420 - 212
E-Mail: julian.strodel[at]aspa-immobilien.de

