Effizient arbeiten und produzieren Ihre Gewerbelösung in Backnang
Diese hochwertige und gepflegte Gewerbeimmobilie bietet ideale Voraussetzungen für produzierende, lagernde oder logistiknahe Unternehmen, die ein repräsentatives und zugleich funktionales Objekt mit klarer Struktur suchen.
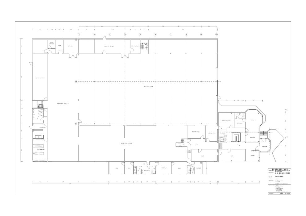
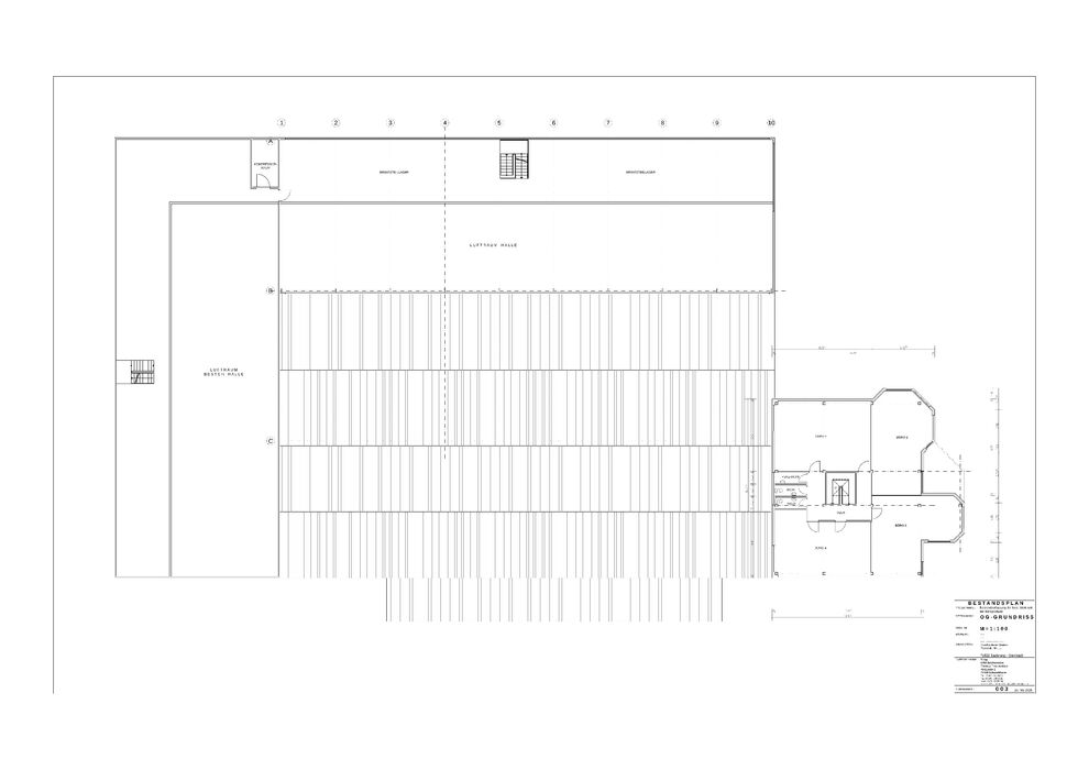
Das Gesamtareal setzt sich aus einer großzügigen Produktions- bzw. Lagerhalle mit ca. 2.550 m² Nutzfläche sowie einem modernen, zweigeschossigen Bürogebäude mit ca. 550 m² zusammen. Ergänzt wird das Ensemble durch Nebenräume und Sozialbereiche sowie einer großzügigen Anzahl an PKW-Stellplätzen direkt auf dem Grundstück.
Produktions- / Lagerhalle:
Die ca. 2.550 m² große Halle ist flexibel nutzbar und zeichnet sich durch ihre moderne Bauweise, ebenerdige Zufahrten und großzügige Raumhöhe aus. Die Fläche eignet sich ideal für Produktionsprozesse, Lagerhaltung, Versand oder technische Dienstleistungen. Große Sektionaltore ermöglichen eine problemlose Anlieferung, auch mit Lkw. Bodentraglast, Stromversorgung sind auf gewerbliche Anforderungen ausgelegt.
Bürogebäude:
Angrenzend an die Halle befindet sich ein repräsentatives Bürogebäude mit zwei Vollgeschossen und ca. 550 m² Fläche. Die modernen Büroeinheiten bieten helle Arbeitsplätze, Besprechungsräume sowie Platz für Verwaltung und Vertrieb. Eine großzügige Empfangszone unterstreicht den professionellen Charakter des Gebäudes. Die Grundrissgestaltung ermöglicht flexible Raumaufteilungen je nach Nutzerbedarf.
Nebenräume und Sozialflächen:
Ergänzend stehen funktionale Nebenflächen wie Technik-, Archiv- oder Lagerräume zur Verfügung. Darüber hinaus bietet die Immobilie gut ausgestattete Sozialräume für Mitarbeitende inklusive Umkleiden, Duschen und Aufenthaltsbereichen.
Außenanlagen / Stellplätze:
Auf dem Grundstück stehen m Freien rund 50 PKW-Stellplätze zur Verfügung. Die großzügige Freifläche bietet außerdem ausreichende Rangiermöglichkeiten für den Lieferverkehr.
Die monatliche Pacht beträgt 21.000,00 EUR zzgl. 19% MwSt.
Allgemeine Daten
Alles was Sie wissen müssen
| Objektart | Hallen, Lager, Produktion |
| Nutzfläche | ca. 2550 m2 |
| Garage / Stellplatz | 4 / 50 |
| Energieausweis | keine Energieausweispflicht |
| Frei ab | 01.01.2026 |
| Kaltmiete | 21.000,00 € |
Standort
Die Große Kreisstadt Backnang liegt verkehrsgünstig rund 30 Kilometer nordöstlich von Stuttgart und ist Teil der wirtschaftsstarken Metropolregion Stuttgart. Mit ihrer soliden Infrastruktur, einem breiten Branchenmix und kontinuierlichem Wachstum zählt Backnang zu den gefragten Gewerbestandorten im Rems-Murr-Kreis.
Der Ortsteil Steinbach bietet für produzierende und gewerbliche Unternehmen attraktive Standortvorteile. Die Produktionshalle befindet sich in einem etablierten Gewerbegebiet mit gut erschlossener Infrastruktur und einer verlässlichen Anbindung an überregionale Verkehrswege.
Verkehrsanbindung:
Straße: Die Bundesstraße B14 ist in wenigen Fahrminuten erreichbar und bietet eine direkte Verbindung in Richtung Stuttgart, Winnenden und Schwäbisch Hall.
Autobahn: Über den Autobahnzubringer und die nahe-gelegene A81 ist der Anschluss an das überregionale Autobahnnetz gewährleistet.
ÖPNV: Backnang ist an das S-Bahn-Netz der Region Stuttgart angebunden (Linien S3 und S4), was eine bequeme Erreichbarkeit für Mitarbeiter und Kunden gewährleistet.
Flughafen: Der Flughafen Stuttgart ist in ca. 45-50 Minuten mit dem Pkw und in ca. 60 Minuten mit der Bahn erreichbar.
Wirtschaftsstandort:
Backnang ist ein gefragter Gewerbestandort mit starker mittelständischer Prägung, insbesondere in den Bereichen Maschinenbau, Elektrotechnik, Automatisierung und Dienstleistungen. Die Stadt profitiert von einer aktiven Wirtschaftsförderung und einem unternehmensfreundlichen Klima.
Fazit:
Der Standort in Backnang-Steinbach eignet sich ideal für Unternehmen, die Wert auf eine verkehrsgünstige Lage, gut ausgebaute Infrastruktur und ein dynamisches wirtschaftliches Umfeld legen.
Effizient arbeiten und produzieren Ihre Gewerbelösung in Backnang
Wir beantworten
gerne Ihre Fragen!
IHRE ANSPRECHPARTNER
Daniela Marek
Vermietungen
Telefon: 07191 / 34420 –213
E-Mail: daniela.marek[at]aspa-immobilien.de
Julian Strodel
Mietverwaltung
Telefon: 07191 / 34420 - 212
E-Mail: julian.strodel[at]aspa-immobilien.de










