Attraktives Mehrfamilienhaus mit 6 Wohneinheiten, Baujahr 2012 Komplett vermietet
Zum Verkauf steht ein modernes und gepflegtes 6-Familienhaus, das im Jahr 2012 in solider Bauweise errichtet wurde. Die Immobilie überzeugt durch sechs attraktive Wohneinheiten, die jeweils über zwei oder drei helle Zimmer verfügen und mit gut durchdachten Grundrissen eine hohe Wohnqualität bieten.
Das Gebäude ist mit einem Aufzug ausgestattet und somit komfortabel und barrierearm zugänglich. Insgesamt umfasst die Liegenschaft eine Wohnfläche von ca. 466 m². Die Beheizung erfolgt über eine moderne und umweltfreundliche Fernwärmeanlage, die nicht nur effizient, sondern auch zukunftsorientiert ist. Für die Bewohner stehen sowohl Außenstellplätze als auch Stellplätze in einer angrenzenden Tiefgarage zur Verfügung.
Alle Einheiten sind zuverlässig und langfristig vermietet. Die Immobilie erwirtschaftet derzeit jährliche Mieteinnahmen von 52.584,00 EUR und bietet damit stabile und planbare Erträge. In Verbindung mit dem gepflegten Zustand und der attraktiven Lage stellt das Objekt eine sichere und nachhaltige Kapitalanlage dar.
Insgesamt verbindet dieses Mehrfamilienhaus solide Renditeaussichten mit langfristiger Wertstabilität. Es eignet sich daher hervorragend für Kapitalanleger, die eine zukunftssichere Immobilie mit stabiler Vermietung in guter Lage suchen.
Allgemeine Daten
Alles was Sie wissen müssen
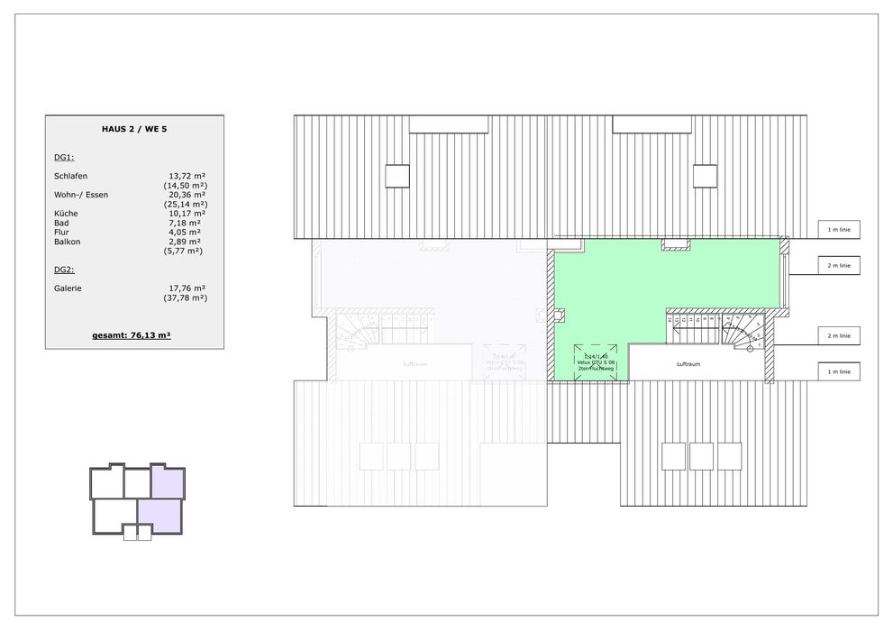
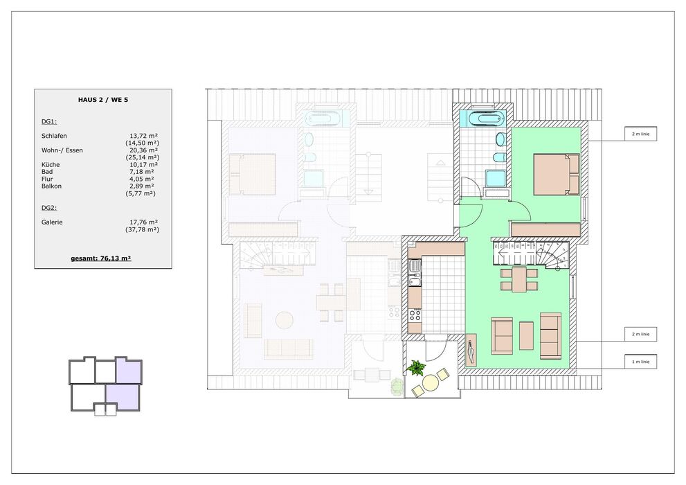
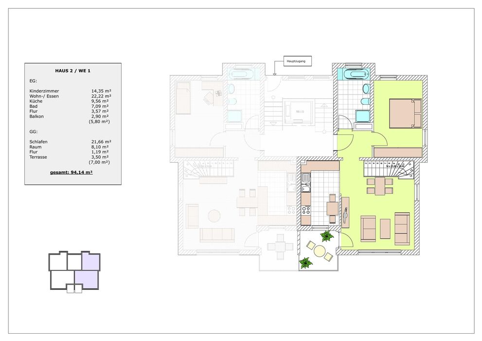
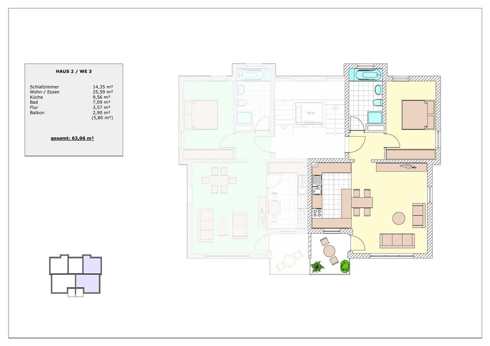
Objektart | Haus |
Wohnfläche | ca. 466 m2 |
Anzahl Zimmer | 16 |
Garage / Stellplatz | 3 / 6 |
Baujahr | 2012 |
Objektzustand | neuwertig |
Energieträger | Fernwärme |
Heizungsart | Zentralheizung, Fernwärme |
Energiekennwert | 71,0 kWh (m2 a) |
Energieausweis | Verbrauchsausweis |
Effizienzklasse | B |
Frei ab | vermietet |
Preis | 1.730.000,00 € |
Provision | 3,57% inkl. 19% MwSt. |
Standort
Sulzbach an der Murr ist eine charmante Gemeinde im Rems-Murr-Kreis, eingebettet in eine reizvolle Landschaft zwischen den Ausläufern des Schwäbischen Waldes. Der Ort bietet eine gelungene Mischung aus naturnaher Ruhe und einer sehr guten Infrastruktur.
Einkaufsmöglichkeiten für den täglichen Bedarf, eine Apotheke, Ärzte sowie Banken befinden sich direkt im Ort und sind bequem zu Fuß erreichbar. Für Familien ist Sulzbach besonders attraktiv: Neben mehreren Kindergärten gibt es eine Grund- und Realschule direkt vor Ort. Weiterführende Schulen wie Gymnasien sind in den benachbarten Städten Backnang und Murrhardt schnell zu erreichen.
Auch die Verkehrsanbindung ist hervorragend. Dank der guten Bus- und Bahnverbindungen erreichen Sie Backnang in wenigen Minuten und den Stuttgarter Hauptbahnhof in nur etwa 35 Minuten. Mit dem Auto sind zudem Schwäbisch Hall, Gaildorf sowie das Heilbronner Land gut erreichbar.
Die Umgebung von Sulzbach lädt zu vielfältigen Freizeitaktivitäten ein: Ob Wandern, Radfahren oder Ausflüge in den Naturpark Schwäbisch-Fränkischer Wald - Natur- und Erholungssuchende kommen hier voll auf ihre Kosten.
Insgesamt vereint Sulzbach an der Murr die Vorzüge eines beschaulichen Wohnorts mit kurzen Wegen zu den urbanen Zentren der Region.
Wir beantworten
gerne Ihre Fragen!
IHRE ANSPRECHPARTNER
Anja Mayer
Vertrieb Immobilien
Telefon: 07191 / 344 20 - 211
E-Mail: anja.mayer[at]aspa-immobilien.de
Björn Wellbrock
Vertrieb Immobilien
Telefon:07191 / 344 20 - 210
E-Mail: bjoern.wellbrock[at]aspa-immobilien.de
